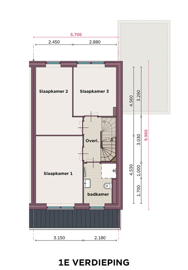
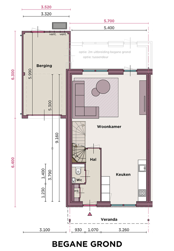
Plattegronden type F
HOEKWONINGEN
Bouwnummers 5 • 26*
(*gespiegeld)
Bekijk hieronder de plattegronden
 
							 
							En meld je aan voor de nieuwsbrief en wij houden je graag op de hoogte van de ontwikkelingen rondom Mooi Skoatterwâld!